UBICACIÓN Y PLUSVALÍA
Colonia Panamericana
Una de las zonas con mayor plusvalía y seguridad en Chihuahua
Ubicación céntrica
A 2 min de Av. La Cantera, cerca de hospitales, escuelas, centros comerciales y complejo industrial
Un desarrollo donde cada desición arquitectónia busca mejorar la forma en que se habita en Chihuahua
Una de las zonas con mayor plusvalía y seguridad en Chihuahua
A 2 min de Av. La Cantera, cerca de hospitales, escuelas, centros comerciales y complejo industrial
Desde $3.15 MDP
Desde 5% - 10%
De contado o posibilidad de crédito hipotecario
Con broker hipotecario
De 63 m² con terraza privada
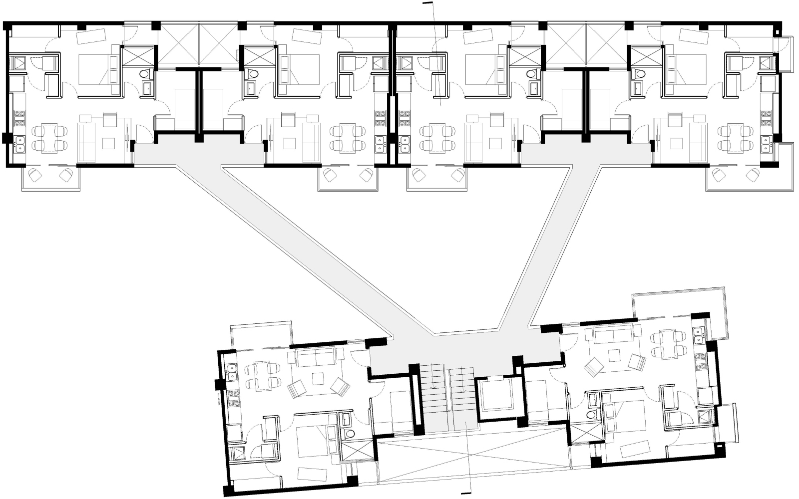
Plano de planta
Plano del departamento
Plano del estacionamiento
Elevador de carros
Plano corte vertical
Agenda una visita a Alvatore, tu nuevo hogar o inversión en Chihuahua.